Al 23 jaar de grootste gratis online marktplaats!
Berichten
Account
+
Plaats zoekertje
Alle rubrieken
Agrarisch
Antiek en Kunst
Audio, TV en Foto
Auto's
Auto-onderdelen
Auto diversen
Boeken
Beauty en Gezondheid
Bedrijfspanden
Caravans en Kamperen
Cd's en Dvd's
Computers en Software
Contacten en Berichten
Diensten en Vakmensen
Dieren en Toebehoren
Doe-het-zelf en Verbouw
Erotiek
Erotieklijnen
Fietsen en Brommers
Hobby en Vrije tijd
Huis en Inrichting
Huizen en Kamers
Kinderen en Baby's
Kleding | Dames
Kleding | Heren
Motoren
Muziek en Instrumenten
Paranormaal
Postzegels en Munten
Sieraden, Tassen en Uiterlijk
Spelcomputers, Games
Sport en Fitness
Telecommunicatie
Tickets en Kaartjes
Tuin en Terras
Vacatures
Vakantie
Verzamelen
Watersport en Boten
Witgoed en Apparatuur
Zakelijke goederen
Diversen
Alle regio's
Brussel
West-Vlaanderen
Oost-Vlaanderen
Antwerpen
Vlaams-Limburg
Vlaams-Brabant
Waals-Brabant
Henegouwen
Namen
Luik
Luxemburg
Zoeken
Rubrieken
Tuin en Terras
Tuinaanleg en Decoratie
Bielzen en Borders
Fonteinen en Waterpartijen
Gaas en Afrastering
Hekken en Schuttingen
Kunstgras
Sierstenen en Rotsen
Tuinbeelden en Tuinkabouters
Tuindecoratie
Tuingereedschap
Tuinhout en Palen
Tuinslangen
Verlichting
Zwembaden en Spa's
Vijvers en Toebehoren
Zwembaden | Toebehoren
Bloemen en Planten
Bloembakken
Bloembollen en Zaden
Bloemen en Planten
Bloempotten
Bomen en Struiken
Kassen en Kweekspullen
Huisjes en Meubelen
Parasols en Partytenten
Tuinhuisjes en Blokhutten
Tuinmeubelen
Veranda's en Overkappingen
Zonneschermen
Tuinmeubelen | Toebehoren
Bodem en Grond
Aarde en Zand
Gras en Kunstgras
Mest en Plantenvoeding
Tegels en Terrasdelen
Grasmaaiers
Cirkelmaaiers
Elektrische Maaiers
Grasmaaier Onderdelen
Grasmaaiers
Grastrimmers
Handmaaiers
Kooimaaiers
Maairobots
Motormaaiers
Verticuteermachines
Zitmaaiers
Bomen
Fruitbomen
Olijfbomen
Palmbomen
Sparren en Dennen
Gereedschap
Bladblazers
Heggenschaar
Hogendrukreinigers
Kettingzagen
Scrobmachines
Water stofzuigers
Werktuigen
Herinnering
Grafdecoratie
Tuinplanten
Fruitplantjes
Groenteplantjes
Klimplanten
Sierplanten
Struiken
Tuinverlichting
Grondspots
Led-Verlichting
Sensorlampen
Solarlampen
Staande Lampen
Wandlampen
Tuinaccessoires
Barbecues en Vuurkorven
Brievenbussen
Buitenkeukens
Deurmatten
Droogmolens en Wasrekken
Openhaardhout
Regentonnen
Terrasverwarmers
Overige
Werkkleding
Onderdelen en Accessoires
Overige Tuin en Terras
Rubrieken
Rubrieken
×
Home
-
Tuin en Terras
-
Tuinhuisjes en Blokhutten
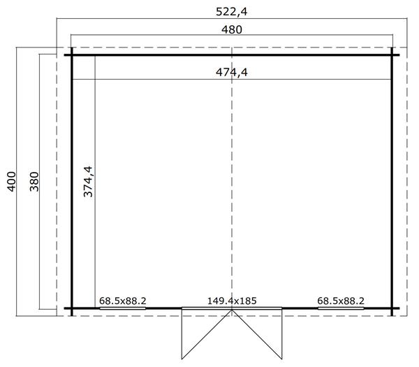
- Blokhut Udo 480x300 Onbehandeld vuren
Je link hier plaatsen
Blokhut Udo 480x300 Onbehandeld vuren
sinds
27-1-2026 09:08:13
Kopieer link
prijs: € 2849
Locatie
:
Meeuwen-gruitrode
(Vlaams-Limburg)
Kenmerken
Staat
: Nieuw
Beschrijving
De Blokhut Udo 480x300 Onbehandeld vuren van Outdoor Life Products is een praktische en een zeer royale blokhut met een traditionele look. Achter de afsluitbare dubbele deur met lage dorpel is bergruimte voor waardevolle spullen en/of tuingereedschap.
Dit tuinhuis heeft een draai-kiep raam en opent naar binnen toe kantelend of draaiend.
De traditionele stapelbouwwijze met de massieve 28mm dikke wandbalken maakt de montage van dit tuinhuis relatief gemakkelijk en prima te doen voor de gemiddelde klusser. Deze blokhut wordt exclusief dakbedekking geleverd. Voor jarenlang plezier en een duurzame en kwalitatief hoogwaardige afwerking is het advies het dak af te werken met dakshingles. Dakshingles zijn in 3 kleuren verkrijgbaar.
Kenmerken: Staat: Nieuw, Kopen in Meeuwen-Gruitrode
Stuur bericht
Zoekertjenummer: 120221768
Meld aan Aanbod