Al 23 jaar de grootste gratis online marktplaats!
Berichten
Account
+
Plaats zoekertje
Alle rubrieken
Agrarisch
Antiek en Kunst
Audio, TV en Foto
Auto's
Auto-onderdelen
Auto diversen
Boeken
Beauty en Gezondheid
Bedrijfspanden
Caravans en Kamperen
Cd's en Dvd's
Computers en Software
Contacten en Berichten
Diensten en Vakmensen
Dieren en Toebehoren
Doe-het-zelf en Verbouw
Erotiek
Erotieklijnen
Fietsen en Brommers
Hobby en Vrije tijd
Huis en Inrichting
Huizen en Kamers
Kinderen en Baby's
Kleding | Dames
Kleding | Heren
Motoren
Muziek en Instrumenten
Paranormaal
Postzegels en Munten
Sieraden, Tassen en Uiterlijk
Spelcomputers, Games
Sport en Fitness
Telecommunicatie
Tickets en Kaartjes
Tuin en Terras
Vacatures
Vakantie
Verzamelen
Watersport en Boten
Witgoed en Apparatuur
Zakelijke goederen
Diversen
Alle regio's
Brussel
West-Vlaanderen
Oost-Vlaanderen
Antwerpen
Vlaams-Limburg
Vlaams-Brabant
Waals-Brabant
Henegouwen
Namen
Luik
Luxemburg
Zoeken
Rubrieken
Tuin en Terras
Tuinaanleg en Decoratie
Bielzen en Borders
Fonteinen en Waterpartijen
Gaas en Afrastering
Hekken en Schuttingen
Kunstgras
Sierstenen en Rotsen
Tuinbeelden en Tuinkabouters
Tuindecoratie
Tuingereedschap
Tuinhout en Palen
Tuinslangen
Verlichting
Zwembaden en Spa's
Vijvers en Toebehoren
Zwembaden | Toebehoren
Bloemen en Planten
Bloembakken
Bloembollen en Zaden
Bloemen en Planten
Bloempotten
Bomen en Struiken
Kassen en Kweekspullen
Huisjes en Meubelen
Parasols en Partytenten
Tuinhuisjes en Blokhutten
Tuinmeubelen
Veranda's en Overkappingen
Zonneschermen
Tuinmeubelen | Toebehoren
Bodem en Grond
Aarde en Zand
Gras en Kunstgras
Mest en Plantenvoeding
Tegels en Terrasdelen
Grasmaaiers
Cirkelmaaiers
Elektrische Maaiers
Grasmaaier Onderdelen
Grasmaaiers
Grastrimmers
Handmaaiers
Kooimaaiers
Maairobots
Motormaaiers
Verticuteermachines
Zitmaaiers
Bomen
Fruitbomen
Olijfbomen
Palmbomen
Sparren en Dennen
Gereedschap
Bladblazers
Heggenschaar
Hogendrukreinigers
Kettingzagen
Scrobmachines
Water stofzuigers
Werktuigen
Herinnering
Grafdecoratie
Tuinplanten
Fruitplantjes
Groenteplantjes
Klimplanten
Sierplanten
Struiken
Tuinverlichting
Grondspots
Led-Verlichting
Sensorlampen
Solarlampen
Staande Lampen
Wandlampen
Tuinaccessoires
Barbecues en Vuurkorven
Brievenbussen
Buitenkeukens
Deurmatten
Droogmolens en Wasrekken
Openhaardhout
Regentonnen
Terrasverwarmers
Overige
Werkkleding
Onderdelen en Accessoires
Overige Tuin en Terras
Rubrieken
Rubrieken
×
Home
-
Tuin en Terras
-
Tuinhuisjes en Blokhutten
- Blokhut - Tuinhuis Javea | 44 mm | onbehandeld
Je link hier plaatsen
Blokhut - Tuinhuis Javea | 44 mm | onbehandeld
sinds
26-11-2025 10:04:25
Kopieer link
prijs: € 11518
Locatie
:
Meeuwen-gruitrode
(Vlaams-Limburg)
Kenmerken
Staat
: Nieuw
Beschrijving
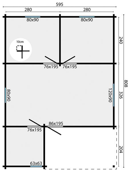
blokhut Javea 595x808 cm heeft een mooie luifel van 204 cm aan de voorkant die u naar eigen wens kunt benutten. Zo kunnen er bijvoorbeeld nog spullen aan de voorkant van deze blokhut droog staan of creëert u een leefomgeving voor extra sfeer. Met de wind- en waterdichte hoekverbindingen blijven al uw spullen veilig en droog staan.
Blokhut Javea van Tuindeco wordt standaard blank uitgevoerd in 44 mm wanddelen, met enkele deuren en dubbel glas. De blokhut heeft 4 enkele deuren, waarvan 3 binnendeuren met een afmeting van 76x195 cm en 1 buitendeur met een afmeting van 86x195 cm. Met een mooie oppervlakte van 595x808 cm heeft de blokhut veel bergruimte voor een lage prijs. Er wordt zelfs een bouwtekening meegeleverd, zodat u de blokhut ook zelf kunt opbouwen.
U kunt er ook voor kiezen of u tegen betaling funderingsbalken aan de Tuindeco-blokhut wilt toevoegen. Hier heeft u de keuze uit hardhouten of composiet. Er is ook de optie om geen funderingsbalken toe te voegen, echter raden wij dit wel aan. Het aanschaffen van funderingsbalken verlengt de levensduur en tevens uw genot van de blokhut Javea.
Veilige en droge berging
Geschikt om zelf op te bouwen
Hoge kwaliteit voor een lage prijs
Multifunctioneel door groot oppervlak
Kenmerken: Staat: Nieuw, Kopen in Meeuwen-Gruitrode
Stuur bericht
Zoekertjenummer: 120115053
Meld aan Aanbod